Woodlands
POA
Detached | 3 Bedrooms | 995.7 Sqft
The Farnham is a 3 bed detached new build home. The ground floor consists of an entrance hallway, with WC off, a living room, and an open-plan kitchen/diner. The first floor holds a master bedroom with ensuite, a second double bedroom, a single bedroom and a family bathroom.
Please note – all computer generated images are for general guidance and illustrative purposes only, therefore may not show the house design as it is seen on an individual plot.
Availability
Currently Farnham is not available, however it is available to build on our bespoke service, please contact us for more information.
Farnham.
Downloads
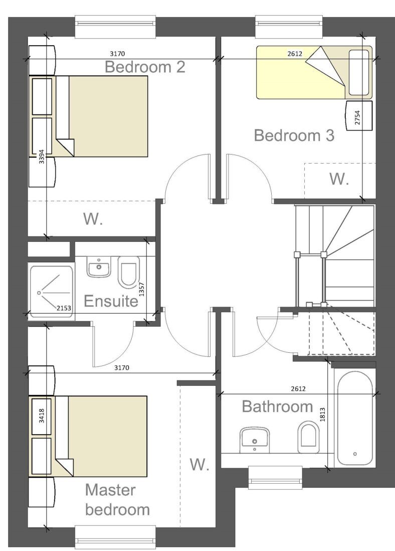
Room Sizes
| Ground Floor | Imperial | Metric |
|---|---|---|
| Kitchen/Diner | 19' 03" x 11' 05" | 5870 x 3489 |
| Lounge | 15' 03" x 10' 04" | 4706 x 3170 |
| WC | 05' 11" x 03' 05" | 1813 x 1052 |
| First Floor | Imperial | Metric |
|---|---|---|
| Master Bedroom | 11' 02" x 10' 04" | 3418 x 3170 |
| Ensuite | 07' 01" x 04' 05" | 2153 x 1357 |
| Bedroom 2 | 11' 02" x 10' 04" | 3394 x 3170 |
| Bedroom 3 | 09' 00" x 08' 07" | 2754 x 2612 |
| Bathroom | 08' 07" x 05' 11" | 2612 x 1813 |
How Fairgrove can help you buy.
WAYS TO BUY
At Fairgrove we offer a range of schemes and all the help and advice you will need to make buying your new home as worry free as possible. From buying your first home to your last forever home we can tailor our help and advice to you.
Easy Move Scheme.
WAYS TO BUY
If you have a house to sell then reserving on Easy Move will give you time to sell your current home, whilst we hold your chosen plot for you.
First Steps.
WAYS TO BUY
Free help and advice for those buying their first ever home and some extra help with the costs towards your new home.
Part Exchange.
WAYS TO BUY
100% value part exchange for your existing home taking all of the worry out of the process of buying and selling your house.




