Nine Corners
Plot 25, ONLY £330,000
Detached | 3 Bedrooms | 949 Sqft
This modern detached 3 bedroom new build home perfect for families. The ground floor offers an open plan kitchen and dining area with a utility following on from the kitchen, a WC, and a separate living room. On the second floor, you will find the master bedroom with ensuite, fitted out with Ideal Standard sanitaryware, 2 further bedrooms and a family Jack and Jill style bathroom.
The Harpley also benefits from a garage, parking and a private rear garden.
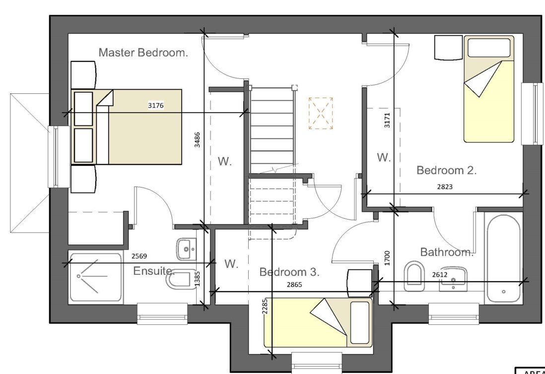
MINIMUM ROOM SIZES SHOWN – DIMENSIONS DIFFER ASK FOR DETAILS.
The Harpley is available with £500 a month towards your mortgage for 6 months.
Please note – all computer generated images are for general guidance and illustrative purposes only, therefore may not show the house design as it is seen on an individual plot.
Availability
Plot
Beds
SqFt
Price
Availability
26
26
3
949
£325,000
SOLD
26
26
3
949
£330,000
Available
Plot 25 is currently available.
Harpley.
Downloads
Room Sizes
| Ground Floor | Imperial | Metric |
|---|---|---|
| Lounge | 16' 03" x 10' 05" | 4659 x 3177 |
| Kitchen/Diner | 16' 03" x 09' 04" | 4959 x 2860 |
| Utility | 06' 07" x 06' 05" | 2012 x 1952 |
| WC | 05' 07" x 03' 07" | 1710 x 1090 |
| First Floor | Imperial | Metric |
|---|---|---|
| Master Bedroom | 11' 05" x 10' 05" | 3486 x 3178 |
| Ensuite | 08' 05" x 04' 06" | 2569 x 1385 |
| Bedroom 2 | 10' 04" x 09' 03" | 3171 x 2823 |
| Bedroom 3 | 09' 04" x 07' 06" | 2865 x 2285 |
| Bathroom | 08' 06" x 05' 07" | 2612 x 1700 |
How Fairgrove can help you buy.
WAYS TO BUY
At Fairgrove we offer a range of schemes and all the help and advice you will need to make buying your new home as worry free as possible. From buying your first home to your last forever home we can tailor our help and advice to you.
Easy Move Scheme.
WAYS TO BUY
If you have a house to sell then reserving on Easy Move will give you time to sell your current home, whilst we hold your chosen plot for you.
First Steps.
WAYS TO BUY
Free help and advice for those buying their first ever home and some extra help with the costs towards your new home.
Part Exchange.
WAYS TO BUY
100% value part exchange for your existing home taking all of the worry out of the process of buying and selling your house.




