Nine Corners
Plot 52, ONLY £225,000
Townhouse | 3 Bedrooms | 818 Sqft
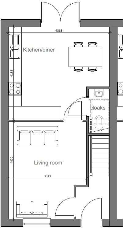
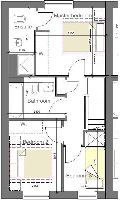
The Ellington is a 2 storey townhouse within our Nine Corners development, this plot internally covers 818sqft, to the ground floor there is an open plan kitchen diner, WC, and separate living area and on the first floor, there is a master bedroom with ensuite, a further 2 bedrooms, and a family bathroom.
Predicted ‘B’ Energy Efficiency Rating.
Take a tour around The Ellington here!
Please note – all computer generated images are for general guidance and illustrative purposes only, therefore may not show the house design as it is seen on an individual plot. *T & C’s apply. Offer not available in conjunction with any other offer or buying schemes, as your sales advisor for more information.
Availability
Plot 52, last Ellington home available!
Plot
Beds
SqFt
Price
Availability
52
3
818
£225,000
SOLD
Ellington.
How Fairgrove can help you buy.
WAYS TO BUY
At Fairgrove we offer a range of schemes and all the help and advice you will need to make buying your new home as worry free as possible. From buying your first home to your last forever home we can tailor our help and advice to you.
Easy Move Scheme.
WAYS TO BUY
If you have a house to sell then reserving on Easy Move will give you time to sell your current home, whilst we hold your chosen plot for you.
First Steps.
WAYS TO BUY
Free help and advice for those buying their first ever home and some extra help with the costs towards your new home.
Part Exchange.
WAYS TO BUY
100% value part exchange for your existing home taking all of the worry out of the process of buying and selling your house.




