Peak View
Distinctive 5 bedroom detached house NOW ONLY £675,000
Detached | 5 Bedrooms | 2777 Sqft
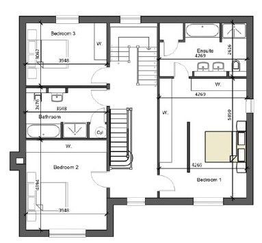
Cherrytree House is a readymade, ready to move into home with a south facing garden and located on a private cul de sac with views over open space. There is an extensive kitchen dining room with bifold door onto the garden, a separate family room as well as a formal lounge and study, 5 double bedrooms, 2 ensuites, a large family bathroom and a shower room on the second floor shared by bedrooms 4 & 5.
Please note – all computer generated images are for general guidance and illustrative purposes only, therefore may not show the house design as it is seen on an individual plot.
Availability
Ready to move into, Part Exchange available, viewing by appointment only.
Cherrytree House.
How Fairgrove can help you buy.
WAYS TO BUY
At Fairgrove we offer a range of schemes and all the help and advice you will need to make buying your new home as worry free as possible. From buying your first home to your last forever home we can tailor our help and advice to you.
Easy Move Scheme.
WAYS TO BUY
If you have a house to sell then reserving on Easy Move will give you time to sell your current home, whilst we hold your chosen plot for you.
First Steps.
WAYS TO BUY
Free help and advice for those buying their first ever home and some extra help with the costs towards your new home.
Part Exchange.
WAYS TO BUY
100% value part exchange for your existing home taking all of the worry out of the process of buying and selling your house.





